Waldhof
Mannheim
- Rüsselsheimer Straße 39
- 26 Wohneinheiten
- bezugsfertig Q1 2027
Highlights
- Ein Aufzug bringt Sie bequem in jede Etage
- Komfortable Verdunklung Ihres Hauses über elektrische Rollläden
- Ansprechende Wohlfühlbäder mit boden ebenen Duschen
- Ein sicheres Gefühl dank Video-Gegen sprechanlage
- Alle Zimmer verfügen über individuell steuerbare Fußbodenheizungen
- Wohn-/Essbereich mit Parkettböden
- Moderne Architektur und helle Wohnräume
Erdgeschoss
1. Obergeschoss
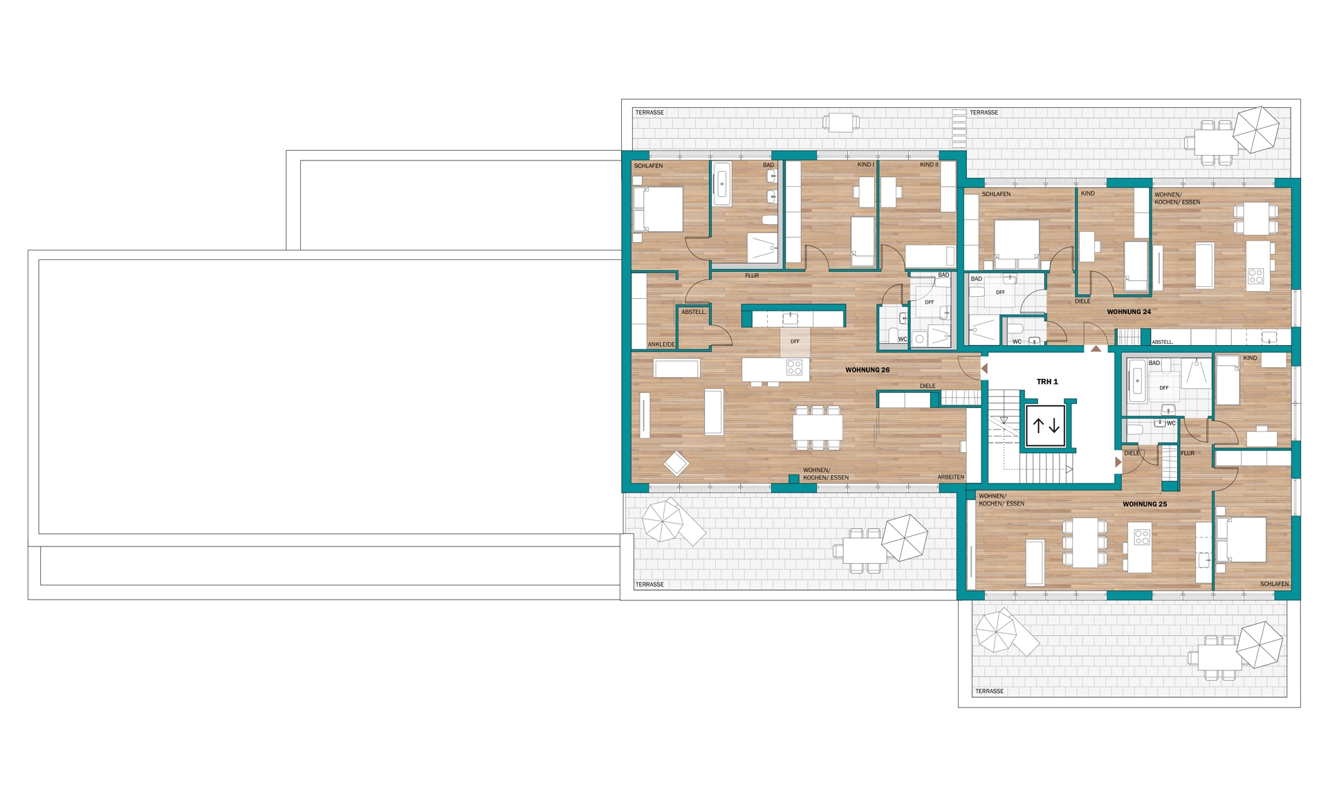
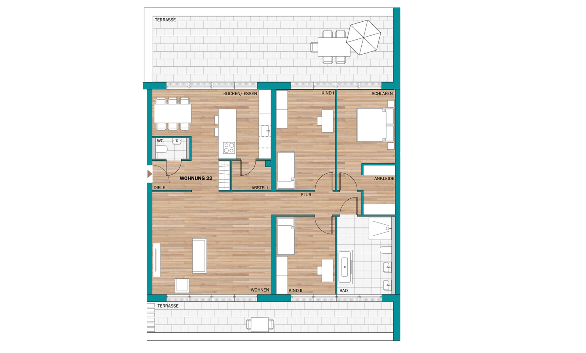
2. Obergeschoss
Dachgeschoss / Penthouse
Wohnen in Waldhof
Das Bauvorhaben befindet sich in der Rüsselsheimer Straße im Mannheimer Stadtteil Waldhof, einem traditionsreichen und lebendigen Quartier im Norden der Stadt. Die Lage verbindet auf angenehme Weise ein gewachsenes Wohnumfeld mit einer sehr guten Anbindung an die Mannheimer Innenstadt und die umliegende Metropolregion Rhein-Neckar.
In unmittelbarer Umgebung finden sich zahlreiche Einkaufsmöglichkeiten, Schulen, Kindergärten sowie Freizeit- und Naherholungsangebote. Grünflächen und der nahegelegene Rhein laden zu Spaziergängen und Erholung im Alltag ein.
Dank der guten Verkehrsanbindung – sowohl mit öffentlichen Verkehrsmitteln als auch über das regionale Straßennetz – lassen sich die Innenstadt, wichtige Arbeitsstandorte und überregionale Ziele schnell und bequem erreichen.
Der Standort steht damit für urbanes Wohnen mit praktischer Infrastruktur, kurzen Wegen und einem authentischen Stadtteilcharakter.

































